52 Brodie Drive, Pine Glen, New Brunswick E1J0G2

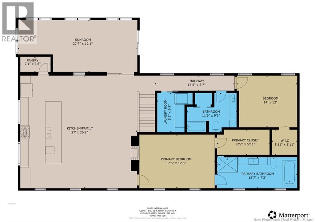
GEOTHERMAL HEATING and IN-LAW SUITE frame this 3,840 sq. ft. home designed for shared living and privacy. The tour opens on the upper level, centered on a kitchen featuring custom cabinetry, quartz countertops, a walk-in pantry, professional-grade appliances, and an oversized island for storage, gathering, and daily use. The living and dining areas flow from the kitchen, wrapped in large windows capturing nature views and anchored by a propane fireplace with a full-height stone mantle. A four-season Florida room adds warmth and flexible space, extending the upper layout to an oversized deck with glass railings. The primary suite includes a walk-in closet and an ensuite with a tiled glass shower and a soaker tub. A second spacious bedroom, a full bathroom and a separate laundry room finish this floor. The main home continues downstairs to a family room, a custom sauna room, 2 additional bedrooms, and a third full bathroom. The fully separate 720 sq. ft. one-bedroom in-law suite sits on the main level, shares access to the attached 27 x 26 garage, and includes a living room, eat-in kitchen, bedroom, and a 4-piece bathroom. Exterior features include a detached 33 x 19 garage, a fire pit area, a covered deck with a six-person hot tub, a central vacuum system, and a separate electrical panel for generator use. A quick closing is available.
Property Specifications
Comprehensive breakdown of features and details.
Interior Details
Building & Exterior
Land & Location
Listing & Financials
Other Specifications
For Sale
$824,900
Beds
5
Baths
4
Living Area
3,840 sqft
Lot Size
1.29 acres
Property Type
Single Family
Year Built
2021