1516 - 2460 EGLINTON AVENUE E, Toronto (Eglinton East), Ontario M1K5J7

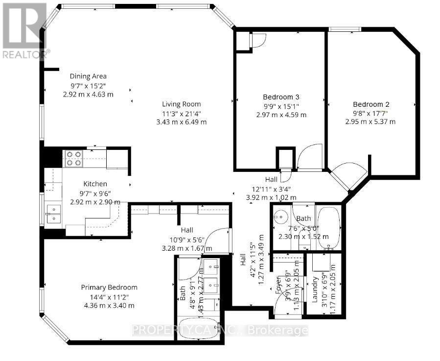
Welcome to this spacious 1,356 sq ft family-sized 3-bedroom, 2-bathroom condo with 1 parking and locker offering the comfort and flow of a bungalow in the sky. Thoughtfully laid out with generous principal rooms, this suite includes parking and a locker for added convenience. Open-concept spacious living/dining room flooded with natural light, offers amazing city views including the CN Tower. A bright, large kitchen offers a clear view & pass-through, ideal for both everyday living and entertaining. The primary bedroom features a beautifully renovated ensuite with double sinks, elegant wainscotting, and contemporary black fixtures. Just steps from Kennedy Subway and GO Station, this property is conveniently located. The BUILDING AMENITIES INCLUDE: indoor swimming pool, gym, 24-hour gatehouse security, party room, squash and basketball courts, billiards, guest suites, park, bicycle room, children's Playground, and an on-site daycare. Nearby amenities include shopping mall, library, community center, the highly rated Lord Roberts Public School, and other schools.
Property Specifications
Comprehensive breakdown of features and details.
Interior Details
Building & Exterior
Land & Location
Listing & Financials
Other Specifications
For Sale
$675,000
Beds
3
Baths
2
Living Area
-
Lot Size
-
Property Type
Apartment
Year Built
-