1510 Shepherd CRESCENT, Saskatoon, Saskatchewan S7W0B6

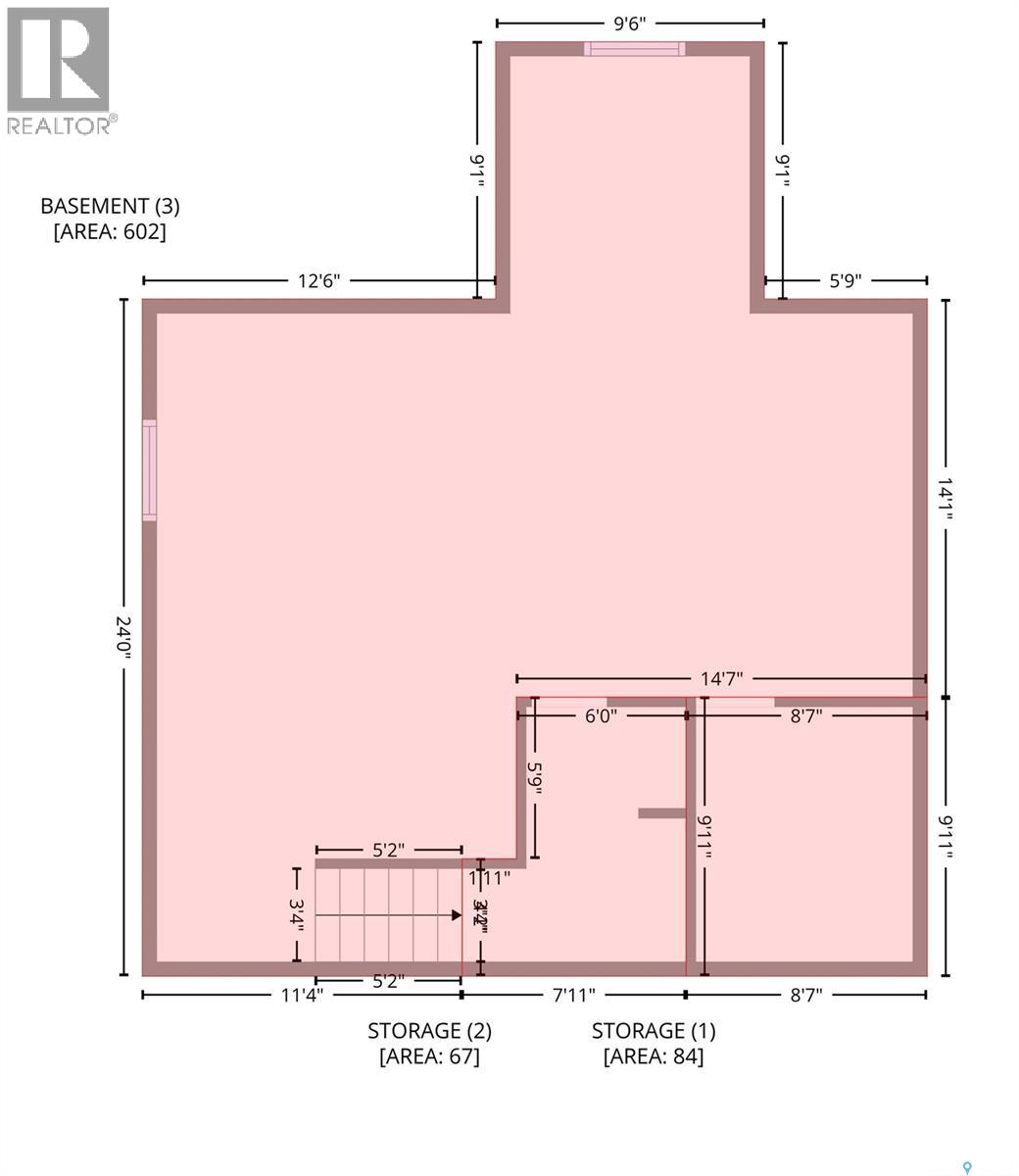
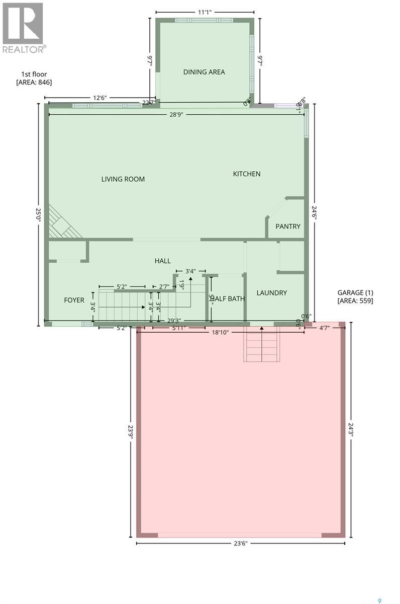
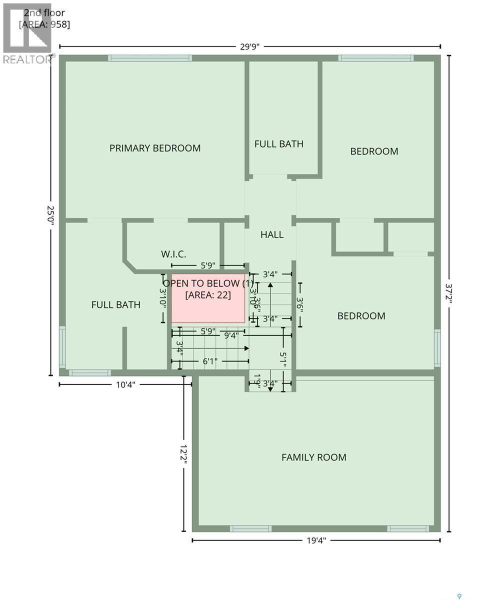
WELCOME TO 1510 SHEPHERD CRES in the heart of Willowgrove. This great 2 story house with bonus room on the second level and finished yard! Great street with lovely neighboring homes. Enjoy all the upgrades along with a practical and very useable floor plan. Open concept with lots of room in main living area. Upgrades throughout with granite in kitchen and all baths, gas fireplace, and hardwood floors. Kitchen also features undermount sink, walk in pantry, stainless appliances and large island with eating bar. Hardwood floor on main level with ceramic tile in entrance, mud room and 2 pce bath. Main floor laundry/mudroom with washer and dryer. Large windows with lots of natural light finished with blinds on all windows throughout. Upper level features a generous size bonus room / Rec room that could be used for extra living space. 3 additional bedrooms on the upper level. Spacious primary bedroom with walk in closet and an ensuite you will love. Jetted larger corner tub with separate shower and oversized vanity. The basement is ready for development with the bathroom already framed and boarded. Outside you will find a good size deck. Bonus items include HRV, central air conditioning, Central vac, Gas BBQ hook up ands much more. The park like finished yard is fenced, move in to the Willows in this premium home.
Property Specifications
Comprehensive breakdown of features and details.
Interior Details
Building & Exterior
Land & Location
Listing & Financials
Other Specifications
For Sale
$639,900
Beds
3
Baths
3
Living Area
1,864 sqft
Lot Size
5,424 sqft
Property Type
House
Year Built
2009