19-21 Irish Town Road, Bay Bulls, Newfoundland & Labrador A0A1C0

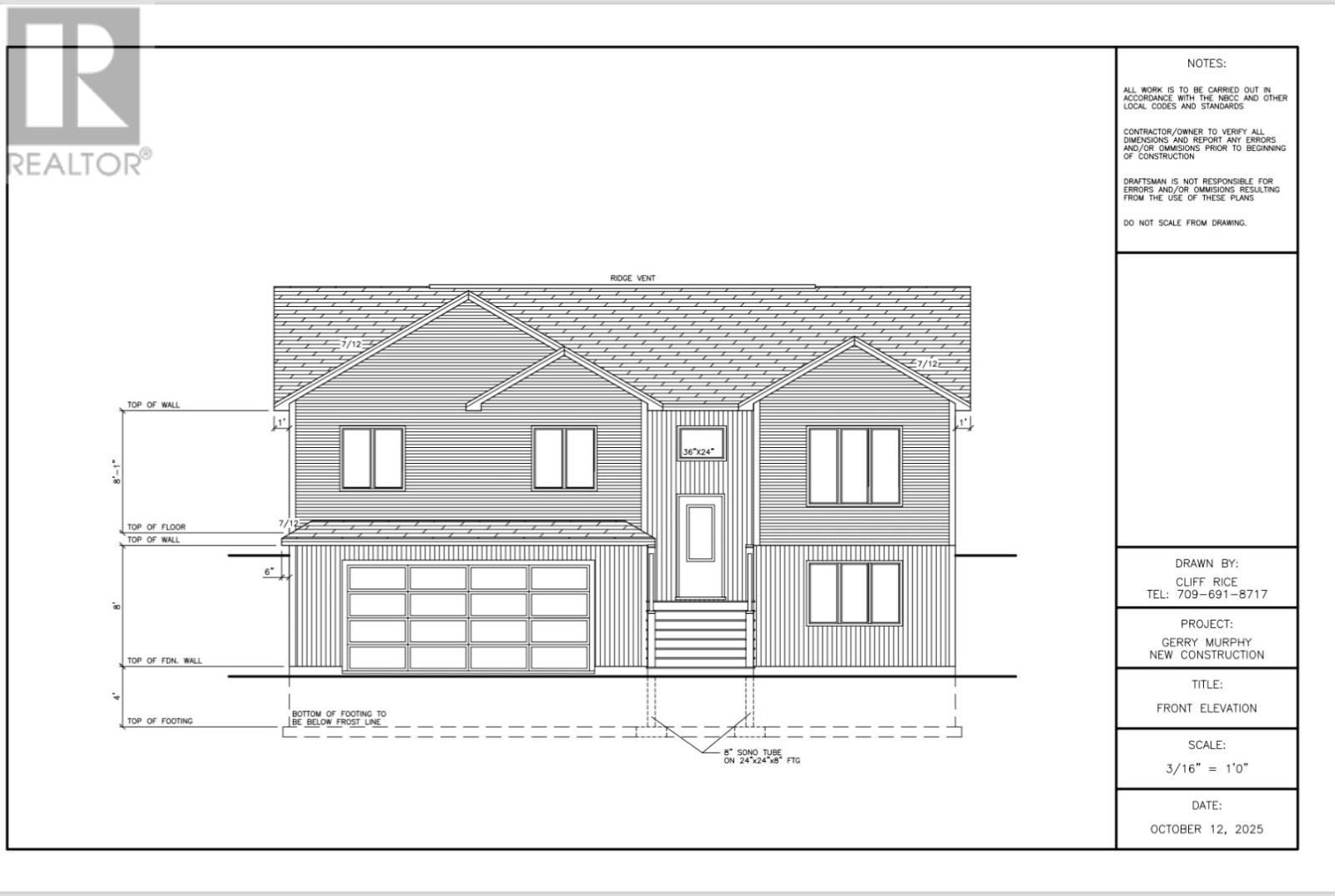
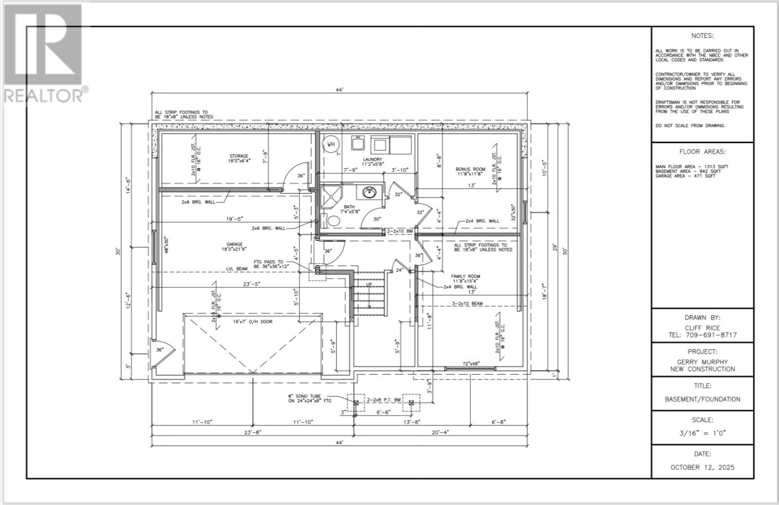
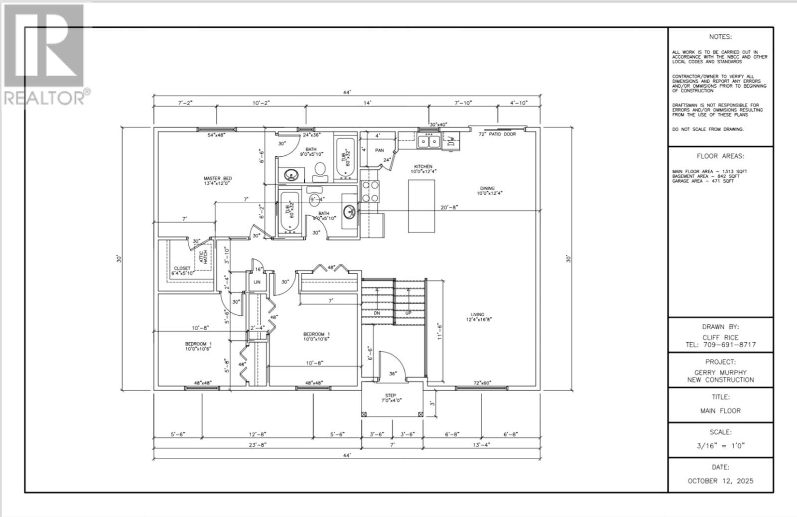
Welcome to 19–21 Irish Town Road in the heart of Bay Bulls. This single-family home is currently under construction and is scheduled to be move-in ready this spring. The bonus with getting in early is that the buyer still has the opportunity to choose many of the finishes and really make the home their own. The location is hard to beat. You’re close to everyday amenities like the grocery store, pharmacy, restaurants, and recreation facilities, plus you’re just minutes from the ocean and several access points to different sections of the scenic East Coast Trail. This home also includes a number of upgrades you don’t typically see in new builds, including a concrete septic system, limited lifetime shingles, and a partially finished basement with a third full bathroom, finished laundry room and a utility room in the back of the garage. There are many additional upgrades as well. Outside, the property offers drive-in access to the backyard and plenty of space to add a shed or additional storage. A great opportunity to own a brand-new home in a well-established and growing community.
Property Specifications
Comprehensive breakdown of features and details.
Interior Details
Building & Exterior
Land & Location
Listing & Financials
Other Specifications
For Sale
$499,900
Beds
3
Baths
3
Living Area
2,155 sqft
Lot Size
-
Property Type
House
Year Built
2026