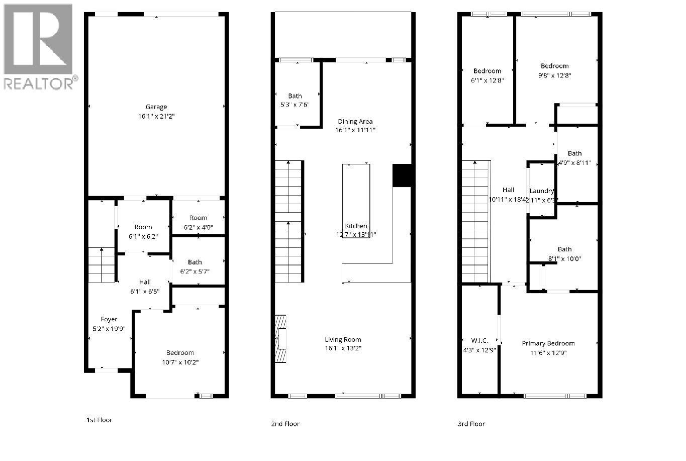
1901 QU'APPELLE Boulevard Unit# 125, Kamloops, British Columbia V2E0C9

Lovely Juniper Ridge three level townhome with 4 bedrooms, beautiful bright open living space and an oversized single garage. Enter this nearly new townhome and you will find a good sized main entry. This level consists of a bedroom with siliding glass doors to a patio and could be a home office, family room or additional bedroom. There is a storage/mud room space which then leads to the single oversized garage (16’1x21.2) with EV charging. To finish it off there is a 2 piece bathroom. Ascend to the main living space where you will find a great room open floor plan with modern kitchen featuring stone counters, modern appliances including a gas stove, a dining room which leads to a large south facing deck with BBQ hook up and living room with huge picture window and electric fireplace. There is a 2 piece bathroom on this level. The top level includes 3 bedrooms, the primary bedroom has a nice sized ensuite with double sinks and custom walk in closet with built in organizers. There is laundry on the top floor with linen storage and an additional 4 piece bathroom to compliment the 2 additional bedrooms. Bonus 2 outside parking spaces plus street parking 3+ parking total!! This complex itself is located steps to hiking trails, the Juniper Bike Ranch, playground and park, dog park and community market. It is a great area for families, downsize or first timers! There is something here for the whole family. Quick possession possible.
Property Specifications
Comprehensive breakdown of features and details.
Interior Details
Building & Exterior
Land & Location
Listing & Financials
Other Specifications
For Sale
$619,900
Beds
4
Baths
4
Living Area
1,825 sqft
Lot Size
-
Property Type
Row / Townhouse
Year Built
2022