3663 W 48TH AVENUE, Vancouver, British Columbia V6N3R2

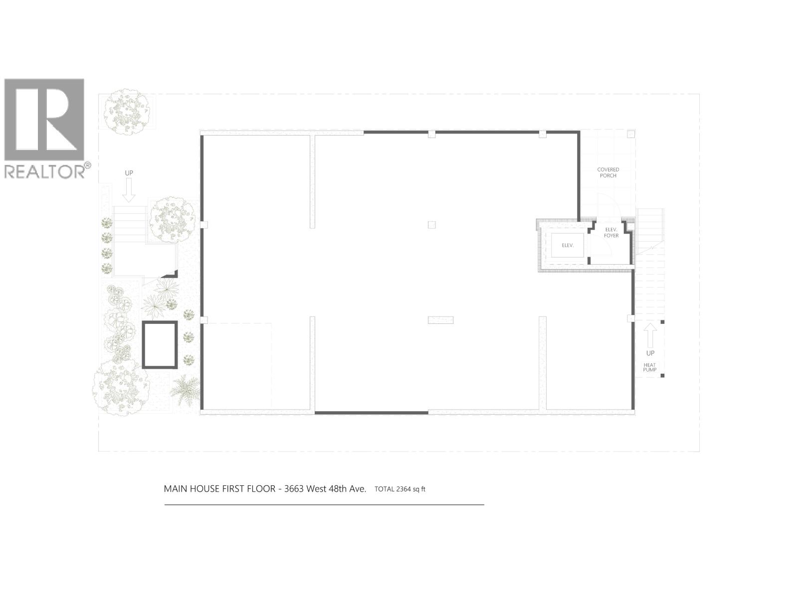
Fabricated steel luxury takes form at 3663 West 48th Avenue, a bespoke Southlands Contemporary residence with a stand-alone laneway home. This custom three-level property blends architectural precision with refined west-side living, featuring oversized triple-glazed windows, a striking floating steel staircase, custom millwork, natural stone surfaces, and wide-plank flooring throughout. The main level is designed for entertaining with oversized living areas, an open-concept chef´s kitchen, and seamless indoor-outdoor flow to covered terraces. Wellness amenities include a deep soaker tub and waterfall shower, while a private rooftop terrace delivers sweeping river and park views. A three-car EV-ready garage, elevator, and flexible lower-level space offer long-term functionality for multigenerational living or customization. Located minutes from UBC, top private schools, and YVR, this is a rare opportunity to own a legacy home in one of Vancouver´s most coveted neighbourhoods.
Property Specifications
Comprehensive breakdown of features and details.
Interior Details
Building & Exterior
Land & Location
Listing & Financials
Other Specifications
For Sale
$6,399,900
Beds
5
Baths
4
Living Area
6,001 sqft
Lot Size
6,000 sqft
Property Type
House
Year Built
2026