37 MAIN STREET, Markham (Unionville), Ontario L3R2E5

1 / 3
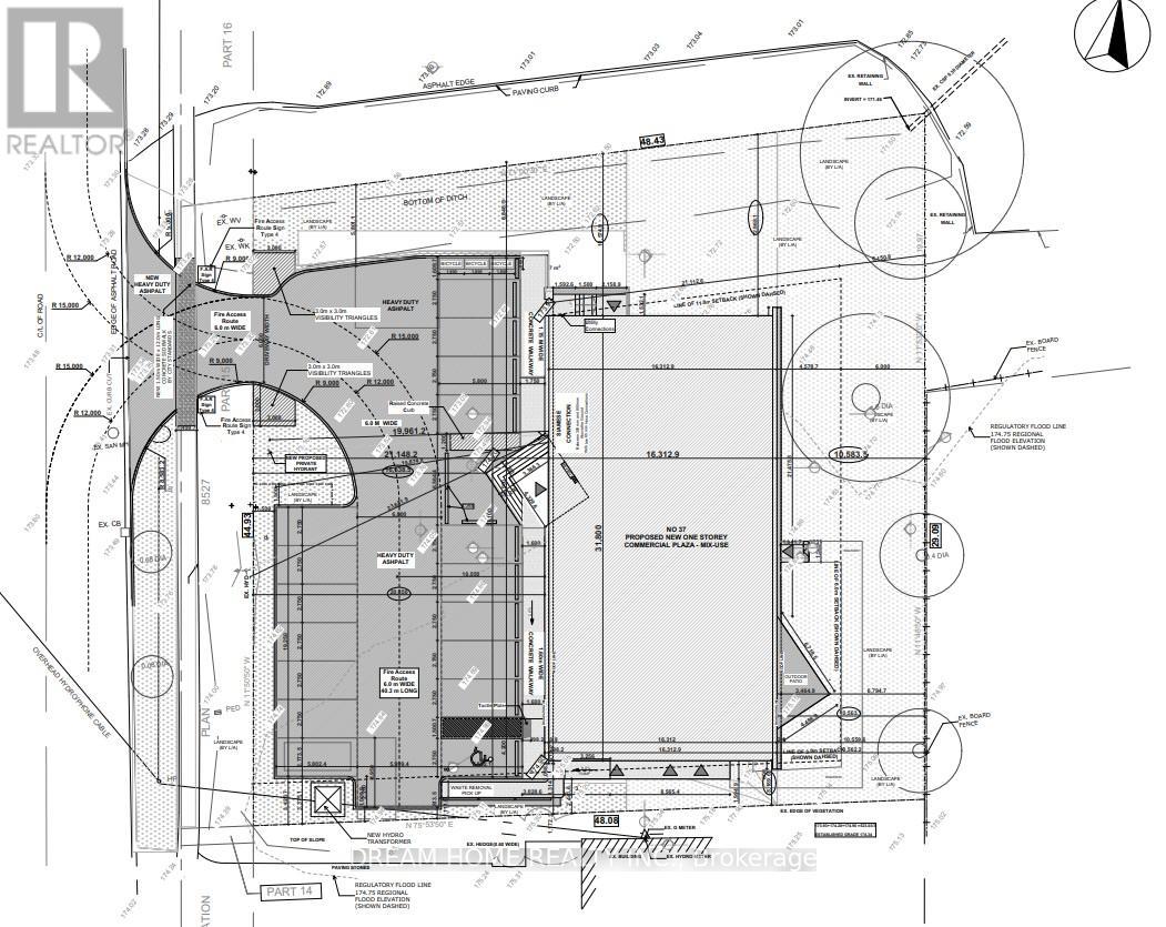
Rarely offer Vacant Commercial land (0.6 Acres) in Prime Unionville Community. A 2 Story Plaza Building with 18 parking spots has been approved. All approved permit drawings, consultation report and design are included.
Property Specifications
Comprehensive breakdown of features and details.
Interior Details
Living Area1
Land & Location
City RegionUnionville
Frontage Length147.0 feet
Lot Size Area0.588 acres
Lot Size Dimensions0.588
Listing & Financials
Listing OfficeDREAM HOME REALTY INC.
Originating System NameToronto Regional Real Estate Board
Other Specifications
CountryCanada
For Sale
$4,180,000
37 MAIN STREET, Markham (Unionville), Ontario L3R2E5
Lot Size
0.588 acres
Property Type
Vacant Land
Year Built
-
Listing IDN12687482
Location & Map
Similar Homes You May Like
More Real Estate in Ontario
Ajax Real EstateBarrie Real EstateBrampton Real EstateGuelph Real EstateHamilton Real EstateKitchener Real EstateLondon Real EstateMarkham Real EstateMississauga Real EstateOakville Real EstateOttawa Real EstatePickering Real EstateRichmond Hill Real EstateSt. Catharines Real EstateToronto Real EstateVaughan Real EstateWhitby Real Estate