002 CRESSWELL ROAD, Kawartha Lakes (Mariposa), Ontario K0M2J0

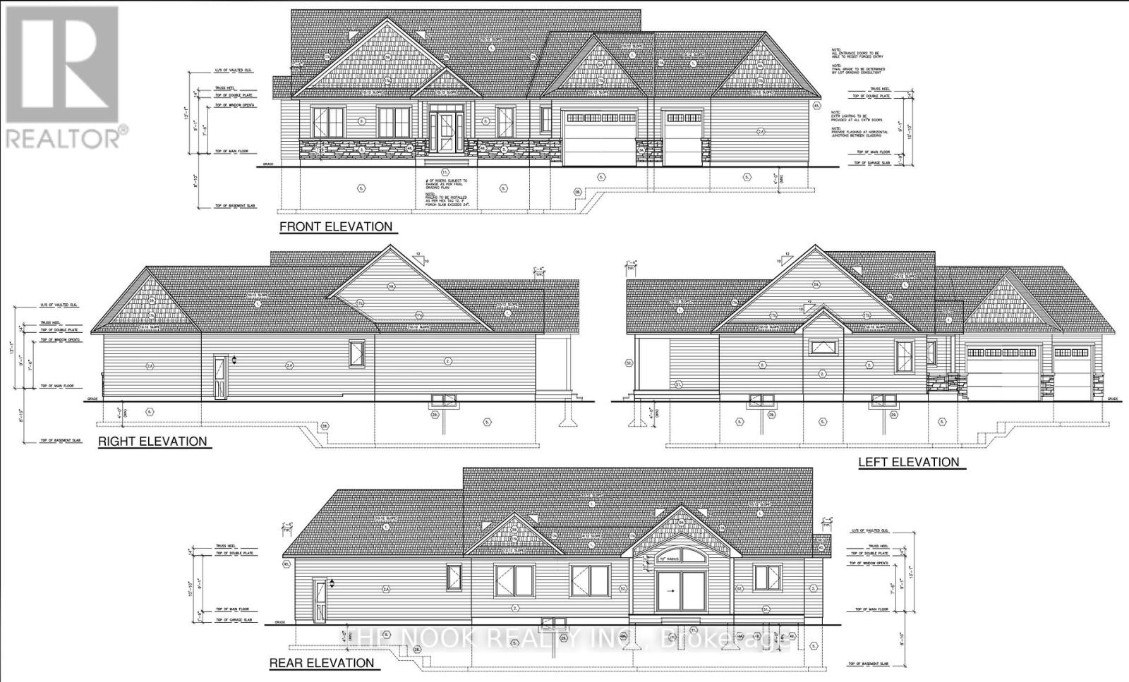
Experience refined single-level living in these exceptional custom-built bungalows set on a private 1-acre lot. Thoughtfully designed with open-concept layouts, each home offers seamless flow between the kitchen, dining, and living spaces, ideal for both everyday living and entertaining. Large windows throughout provide an abundance of natural light and highlight the peaceful surroundings. Each bungalow features three spacious bedrooms and two beautifully finished bathrooms, including a well-appointed primary retreat. High-end finishes are showcased throughout, including premium flooring, custom millwork, designer lighting, and quality craftsmanship at every turn. Offering 1,860 sq. ft. and 1,916 sq. ft. of living space, these homes combine generous proportions with the ease and convenience of bungalow living. The expansive 1-acre setting provides endless possibilities for outdoor enjoyment, privacy, and future enhancements. A rare opportunity to enjoy luxury, space, and comfort in a timeless design. First come first serve as you have the option between either Lot 1 or Lot 2 and which bungalow you'd like built. Not to forget having the ability to choose your very own custom finishes with the builder. A win win!
Property Specifications
Comprehensive breakdown of features and details.
Interior Details
Building & Exterior
Land & Location
Listing & Financials
Other Specifications
For Sale
$1,399,000
Beds
3
Baths
2
Living Area
-
Lot Size
-
Property Type
House
Year Built
-