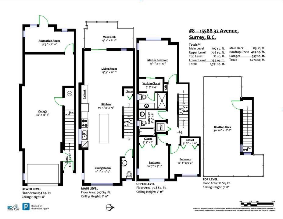
8 15588 32 AVENUE, Surrey, British Columbia V3Z0G3

END and CORNER UNIT in THE WOODS complex that backs onto GREEN SPACE. This stunning 3 bed 3 bath unit allows natural light to flow throughout this open contemporary floor plan from living to kitchen to dining room. This incredible private unit boasts 9' ceilings, quartz countertops, gas stove, stainless steel appliances, additional custom pantry with built in Wine/Beer fridge, laminate flooring, large rooms, powder room on main. Get your BBQ or fire-pit ready for your 517SF of ROOFTOP PATIOS & DECKS with natural gas hook ups ready. This unit makes working from home easy as it's commercially zoned for HOME BUSINESSES, with a separate entrance. Minutes from shopping, restaurants, walking paths, HWY's. You have a 2 car garage and the complex allows 1 dog or 1 cat. Book your viewing today!
Property Specifications
Comprehensive breakdown of features and details.
Interior Details
Building & Exterior
Land & Location
Utilities & Services
Listing & Financials
Other Specifications
For Sale
$859,900
Beds
3
Baths
3
Living Area
1,741 sqft
Lot Size
-
Property Type
Row / Townhouse
Year Built
2014