14 - 334 RATTLESNAKE ROAD, Haldimand (Dunnville), Ontario N0A1K0

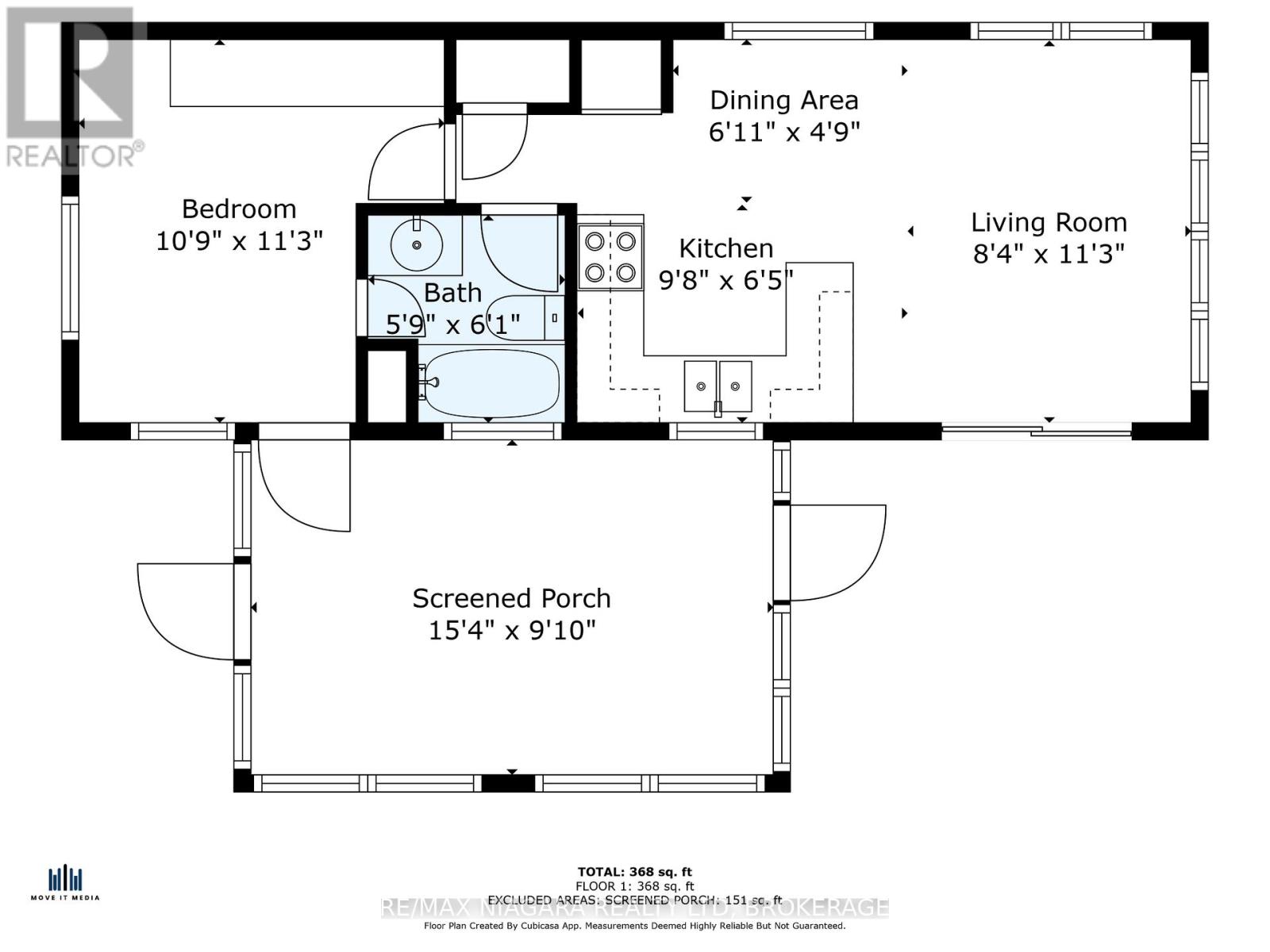
Looking for a seasonal escape from the hustle and bustle of city life? Unit 14 - 334 Rattlesnake Road is your perfect summer retreat! Located in the peaceful, privately-owned Sandy Acres Park, this seasonal-use property offers the ideal setting to relax, recharge, and enjoy the warmer months. This charming one-bedroom, 400 sq ft mobile home is designed for easy, low-maintenance living perfect for weekend getaways or extended stays during the spring, summer, and fall. The spacious 15'4" x 9'10" screened-in porch extends your living space and makes three-season enjoyment a breeze. A brand-new deck, built in 2024, provides the perfect spot to savor your morning coffee or unwind in the fresh country air. As part of a friendly community on leased land, you'll enjoy access to a large swimming pool and a clubhouse for social gatherings. Green thumbs will appreciate the rich soil for gardening, plus the bonus of pear and peach trees on the property!
Property Specifications
Comprehensive breakdown of features and details.
Interior Details
Building & Exterior
Land & Location
Listing & Financials
Other Specifications
For Sale
$50,000
Beds
1
Baths
1
Living Area
-
Lot Size
-
Property Type
Mobile Home
Year Built
-