1 ACADIA DRIVE, Cobourg, Ontario K9A1T8

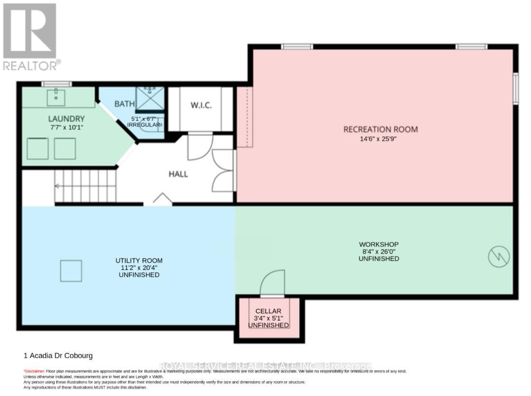
Welcome to this charming two-bedroom home nestled in one of Cobourg's most sought-after neighbourhoods, where tree-lined streets and friendly faces create the perfect backdrop for your next chapter.This inviting residence offers tremendous potential for buyers with vision and creativity. Whether you're looking to add modern touches or completely reimagine the space, this property provides an excellent canvas to craft your dream home. The possibilities are endless.Inside, you'll discover three bathrooms spread across the home, including a fully finished family room in the lower level that's ideal for movie nights, game days, or simply escaping when someone else controls the remote. A dedicated workshop area awaits the hobbyist or handyperson ready to tackle those weekend projects.The oversized two-car garage will make your neighbours envious, offering ample space for vehicles, storage, or perhaps that boat you've been eyeing. Outside, a low-maintenance yard means more time enjoying your weekends and less time pushing a lawnmower.Location truly shines here. Coverdale Park sits just minutes away, perfect for morning jogs or afternoon picnics. Schools, downtown boutiques, charming cafes, and the stunning shores of Lake Ontario are all within easy walking distance. Imagine strolling to the waterfront for sunset or grabbing coffee at your new favourite local spot.Whether you're a growing family seeking room to flourish or empty nesters ready to right-size without sacrificing comfort, this home checks every box.Schedule your private showing today and discover the potential waiting behind this front door.
Property Specifications
Comprehensive breakdown of features and details.
Interior Details
Building & Exterior
Land & Location
Listing & Financials
Other Specifications
For Sale
$630,000
Beds
2
Baths
3
Living Area
-
Lot Size
-
Property Type
House
Year Built
-