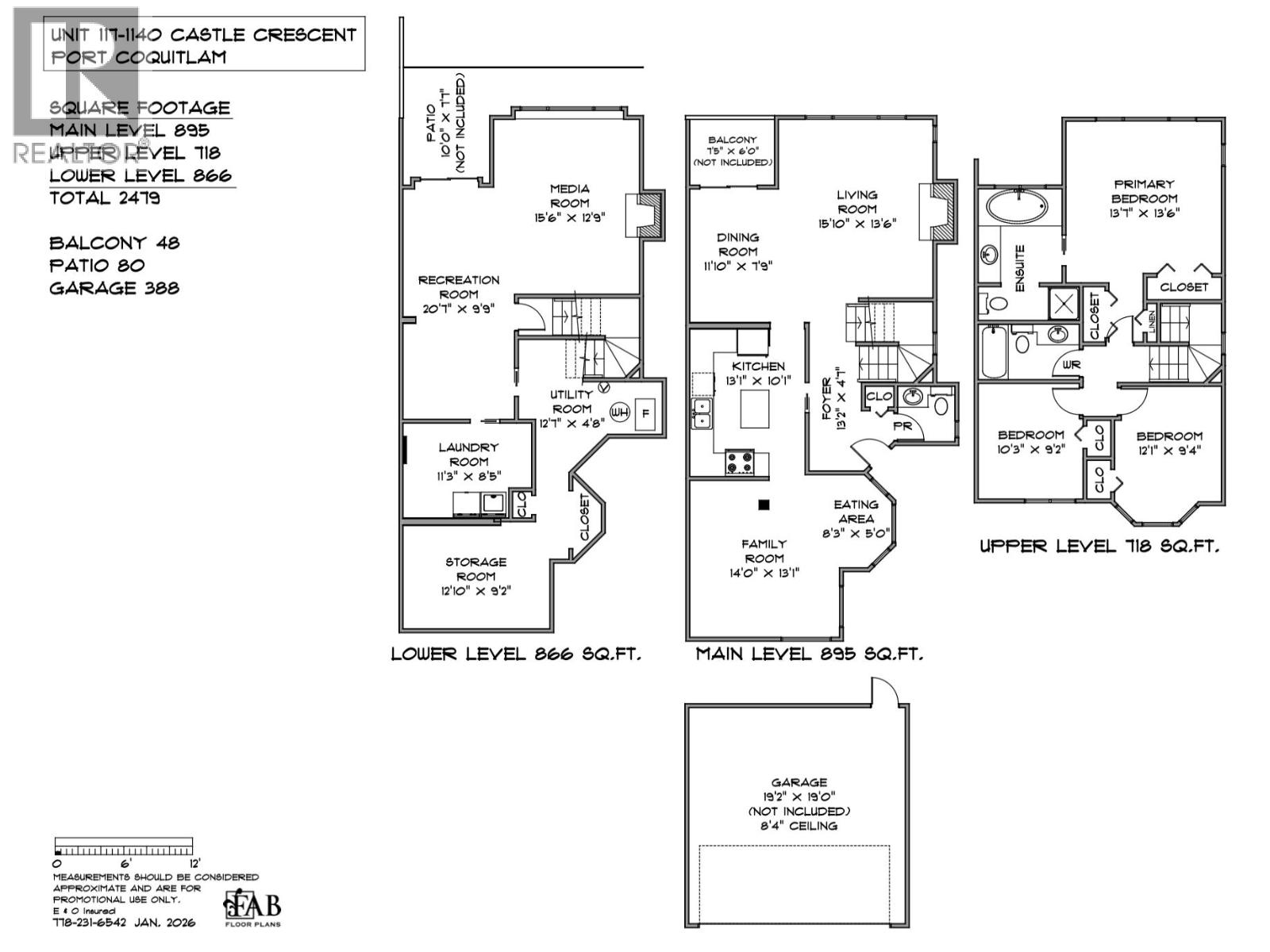
117 1140 CASTLE CRESCENT, Port Coquitlam, British Columbia V3C5M4

Welcome to this exceptional, over 2,500 square ft END-unit home, ideally located on a quiet dead-end street in the best position within the complex, offering VIEWS from every level. Newer windows flood the home with natural light, highlighting 3 generously sized bedrooms and 3 bathrooms. The huge walk-out basement features a media room, workshop area, extensive storage, and access to a private patio & backyard surrounded by lush landscaping. The primary bedroom offers a spa-like retreat with a soaker tub framed by stunning WATER views. Additional features: a large walk-in laundry room, forced-air heating, detached double garage, abundant visitor parking, new roofs (1 year!), and a 4-year-old furnace. Just minutes to transit and amenities, yet private and serene. First OPEN HOUSE, Sun Jan 18th 1-3pm
Property Specifications
Comprehensive breakdown of features and details.
Interior Details
Building & Exterior
Land & Location
Listing & Financials
Other Specifications
For Sale
$1,175,000
Beds
3
Baths
3
Living Area
2,479 sqft
Lot Size
0 sqft
Property Type
Row / Townhouse
Year Built
1988