5210 Green CRESCENT, Regina, Saskatchewan S4V3S9

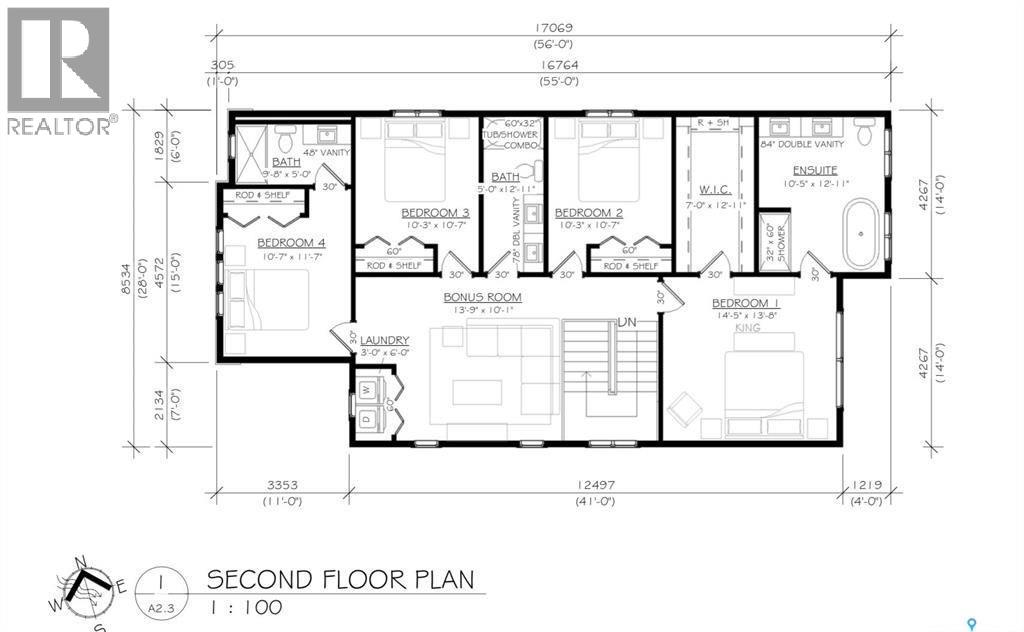
Under Construction – Completion Estimated October 2026. Exceptional new build in the heart of Greens on Gardiner, backing directly onto green space for added privacy and open views. Welcome to 5210 Green Crescent, a thoughtfully designed two-storey home offering 2,393 sq. ft. of well-planned living space in one of East Regina’s most sought-after neighbourhoods. The main floor is designed for both functionality and flexibility, featuring an open-concept great room, dining area, and kitchen, along with a main-floor bedroom and 3-piece bathroom—ideal for guests, extended family, or a home office. The layout flows seamlessly for everyday living and entertaining, with large windows positioned to take advantage of the backyard green space. Upstairs, you’ll find four spacious bedrooms, including a generous primary suite complete with a 5-piece ensuite and walk-in closet. Two additional bedrooms are well-sized, complemented by another full bathroom, while a bonus room provides valuable extra living space. Second-floor laundry adds everyday convenience for busy households. Additional highlights include a double attached garage, a separate side entrance allowing for future suite potential, and a location that offers easy access to walking paths, parks, schools, and all east-end amenities. Construction is well underway, with framing, windows, and the overall layout now clearly defined, giving buyers a strong sense of the finished home. A rare opportunity to secure a spacious, modern home backing green space in Greens on Gardiner—ideal for families seeking location, layout, and long-term value.
Property Specifications
Comprehensive breakdown of features and details.
Interior Details
Building & Exterior
Land & Location
Listing & Financials
Other Specifications
For Sale
$799,900
Beds
5
Baths
4
Living Area
2,393 sqft
Lot Size
4,687 sqft
Property Type
House
Year Built
2025