11013 250A STREET, Maple Ridge, British Columbia V0V0V0

Where Serenity Finds Its Home - For the Few Who Can Call It Theirs. Haven is a limited collection of 33 single-family homes set alongside a permanently protected greenbelt. Here, nature isn´t just a backdrop - it´s a daily companion. Steps from forest trails and streams, Haven is designed for those who value space and serenity. Room to grow. Space to retreat. Homes offer up to 6 bedrooms, with legal basement suites available, designed to balance both connection and retreat. Scandinavian-inspired architecture features light-filled layouts, gourmet kitchens, spa-like primary bedrooms, oversized garages, and industry-leading energy efficiency. This community cannot be replicated. Visit our Home Store and Show Homes. Move-in Homes Available. Open Saturday to Wednesday, 11-5
Property Specifications
Comprehensive breakdown of features and details.
Interior Details
Building & Exterior
Land & Location
Listing & Financials
Other Specifications
For Sale
$1,369,900
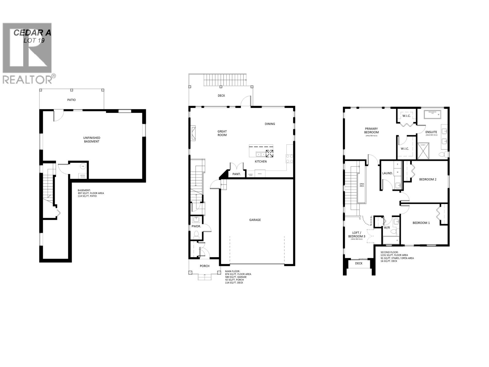
Beds
5
Baths
4
Living Area
3,002 sqft
Lot Size
3,994 sqft
Property Type
House
Year Built
2026