7027 54 AV, Beaumont, Alberta T4X2Z9

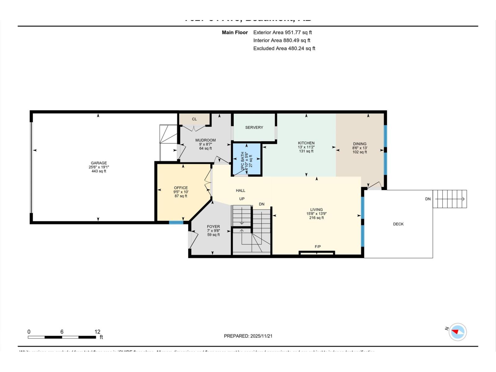
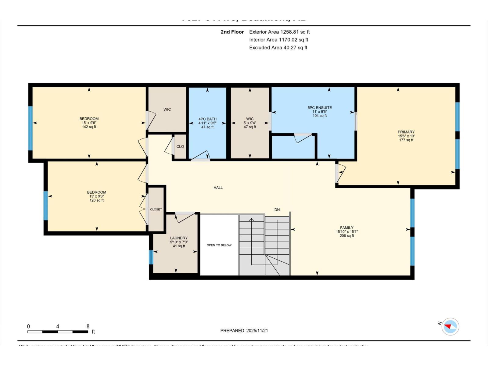
Better than brand new! This gorgeous family home comes completely finished with 3,064 sq. ft. of living space, full landscaping, exterior Gemstone lights, central air conditioning, and a heated double attached garage. The main floor is bright, modern, and highly functional, featuring a den/office, a powder room, and a spacious mudroom off the garage. Continue through the walkthrough pantry to the chef’s kitchen, complete with dual ovens, a gas cooktop, and a huge island overlooking the dining area, the living room with a fireplace, and the sunny south-facing backyard. Upstairs—past the bonus room—you’ll find the luxurious primary suite with a 5-piece ensuite and walk-in closet, along with two additional bedrooms and a 4-piece main bath. The fully finished, extra-tall basement offers a large rec room, the fourth bedroom, and another 4-piece bath—perfect for guests. Located in the family-friendly neighbourhood of Elan with walking paths, playgrounds, and plenty of green space nearby. Must be seen!!
Property Specifications
Comprehensive breakdown of features and details.
Interior Details
Building & Exterior
Land & Location
Listing & Financials
Other Specifications
For Sale
$710,000
Beds
4
Baths
4
Living Area
2,211 sqft
Lot Size
366.04 square meters
Property Type
House
Year Built
2023