3 Hawkcliff Way NW, Calgary, Alberta T3G2R8

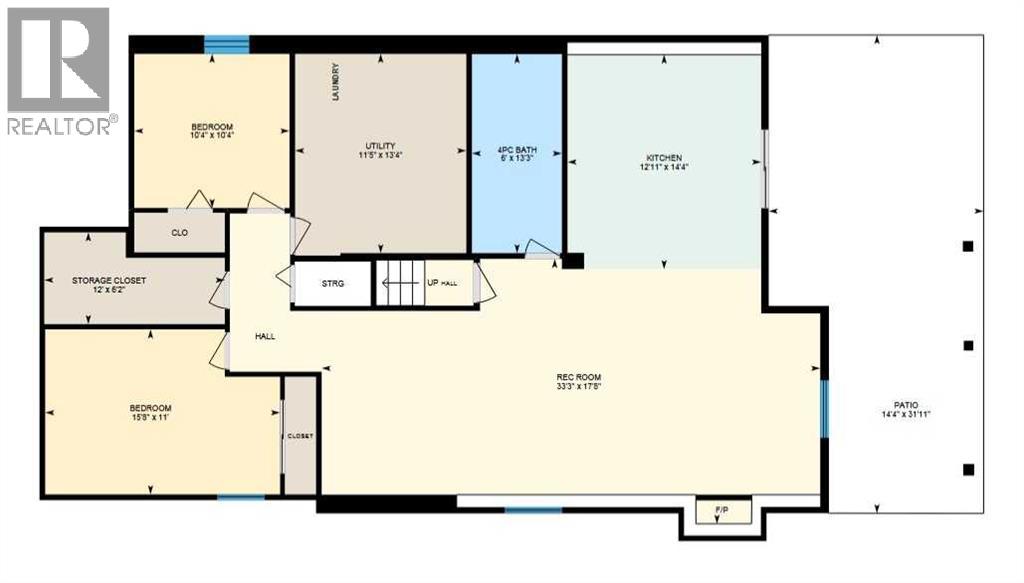
Welcome to this UPDATED and well-maintained OVERSIZED, fully finished WALK-OUT bungalow with kitchenette in the lower level, in the highly sought-after, family community of Hawkwood. This charming corner-lot home with double front attached garage offers 3 spacious bedrooms up, 3 full bathrooms, spacious south facing deck off the family room, over 2,900 Sq Ft of finished living space - perfect for family living and entertaining. You’ll love the spacious living and dining room, totally RENOVATED kitchen with an abundance of white cabinets, granite counters & stainless steel appliances. Adjacent to the kitchen is an expansive dining and family room featuring a gas fireplace - ideal for both everyday living and entertaining. Patio doors lead to the lovely south facing deck with newer vinyl covering (2020), with stairs to the backyard. Primary bedroom easily accommodates king-size furniture and features a bay window with bench, walk in closet and 4 piece ensuite bath. 2 additional bedrooms are both generously sized and 4 piece main bath completes the level. The fully developed walk-out basement includes a huge recreation room with cozy gas fireplace, kitchenette, two rooms (windows are not egress size), 4 pc bath and patio doors to the backyard. An ideal space for guests or extended family. The backyard offers a large green space with mature landscaping, planter boxes with many perennials – a beautiful space for your summer enjoyment! You’ll appreciate all the updates completed in the home over the years: Hardwood floors in the bedrooms (2008) and luxury vinyl plank flooring in kitchen & family room (2016), new flooring in basement (2009), all main floor windows and both patio doors replaced (2011), new shingles (2018), high efficiency furnace (2010), front and back landscaping redone over the past 5 years. Enjoy this convenient location with easy access to transit and main traffic routes. Don’t miss out on this fantastic opportunity – book your viewing today!
Property Specifications
Comprehensive breakdown of features and details.
Interior Details
Building & Exterior
Land & Location
Listing & Financials
Other Specifications
For Sale
$729,900
Beds
5
Baths
3
Living Area
1,546 sqft
Lot Size
716 square meters
Property Type
House
Year Built
1983