474828 TOWNSEND LAKE ROAD, West Grey, Ontario N0C1H0

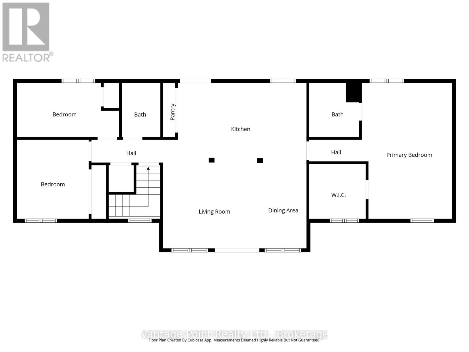
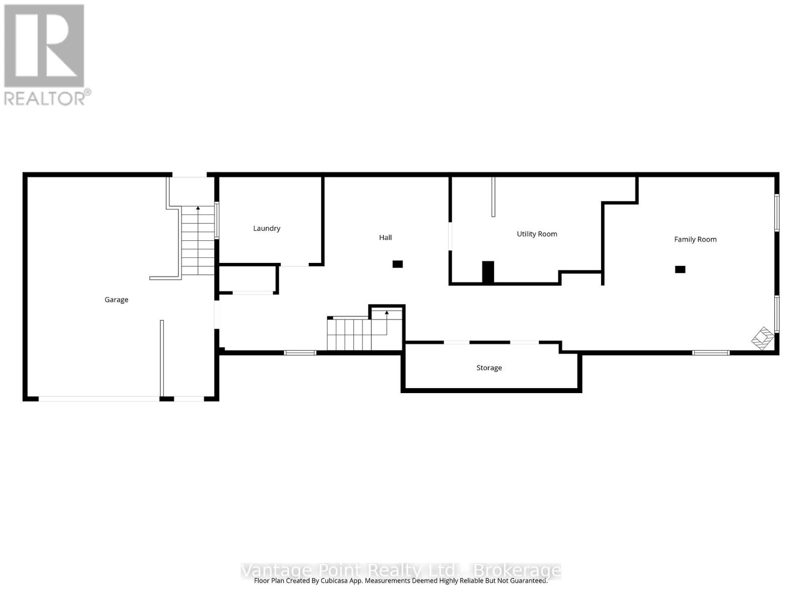
Set high on a gentle rise and surrounded by mature trees, this private retreat offers serene water views of Townsend Lake and a peaceful country atmosphere. Thoughtfully laid out, this move-in-ready 3-bedroom, 2-bath home is ideal as a full-time residence or a four-season getaway. The bright, open-concept main level is enhanced by vaulted ceilings and expansive windows that frame the lake beyond. A beautifully designed kitchen anchors the space, featuring stainless steel appliances, a spacious island, and a distinctive etched-glass pantry door. Step out to the private rear deck to enjoy quiet mornings overlooking the open land, or relax on the front deck while taking in the lake views, both ideal spaces for entertaining. The massive primary bedroom includes a walk-in closet and a 4-piece ensuite, while two additional bedrooms share a well-appointed main bath. The walk-out lower level provides direct access to the spacious garage and offers a generous family room, bonus room, laundry facilities, and ample storage. An asphalt driveway leads to the home, offering easy access and plenty of parking. With privacy created by surrounding trees and natural landscaping, this property delivers a true sense of seclusion while remaining close to recreation. Just a short walk to public access at Townsend Lake and a short drive to Bell's Lake, with nearby golf courses, ATV and snowmobile trails, and cross-country skiing, this is an exceptional opportunity to enjoy relaxed lakeside living year-round.
Property Specifications
Comprehensive breakdown of features and details.
Interior Details
Building & Exterior
Land & Location
Utilities & Services
Listing & Financials
Other Specifications
For Sale
$699,000
Beds
3
Baths
2
Living Area
-
Lot Size
-
Property Type
House
Year Built
-