1505 15 Avenue SW, Calgary, Alberta T3C0Y1

1 / 16
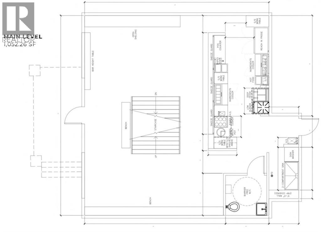
This is an excellent opportunity to acquire a restaurant located in a free-standing building in a prime location, offering strong visibility and easy customer access. The lease runs until February 28, 2031, with a competitive basic rent plus operating costs of $5,000 per month. The space can be converted to other cuisine concepts (please note Japanese cuisine and fried chicken concepts are not permitted). With its standalone presence, favorable lease terms, and flexible use options, this restaurant is well suited for operators seeking strong value in a high-demand area.
Property Specifications
Comprehensive breakdown of features and details.
Interior Details
Living Area1200 sqft
Building & Exterior
Building Area Total1200.0
Building Area Unitssquare feet
Year Built2000
Land & Location
City RegionSunalta
Subdivision NameSunalta
Listing & Financials
Listing OfficeGrand Realty
Originating System NameCalgary Real Estate Board
Other Specifications
CountryCanada
For Sale
$105,000
1505 15 Avenue SW, Calgary, Alberta T3C0Y1
Beds
-
Baths
-
Living Area
1,200 sqft
Lot Size
-
Property Type
Business
Year Built
2000
Listing IDA2279684