3204 Aldridge St, Saanich, British Columbia V8P4L6

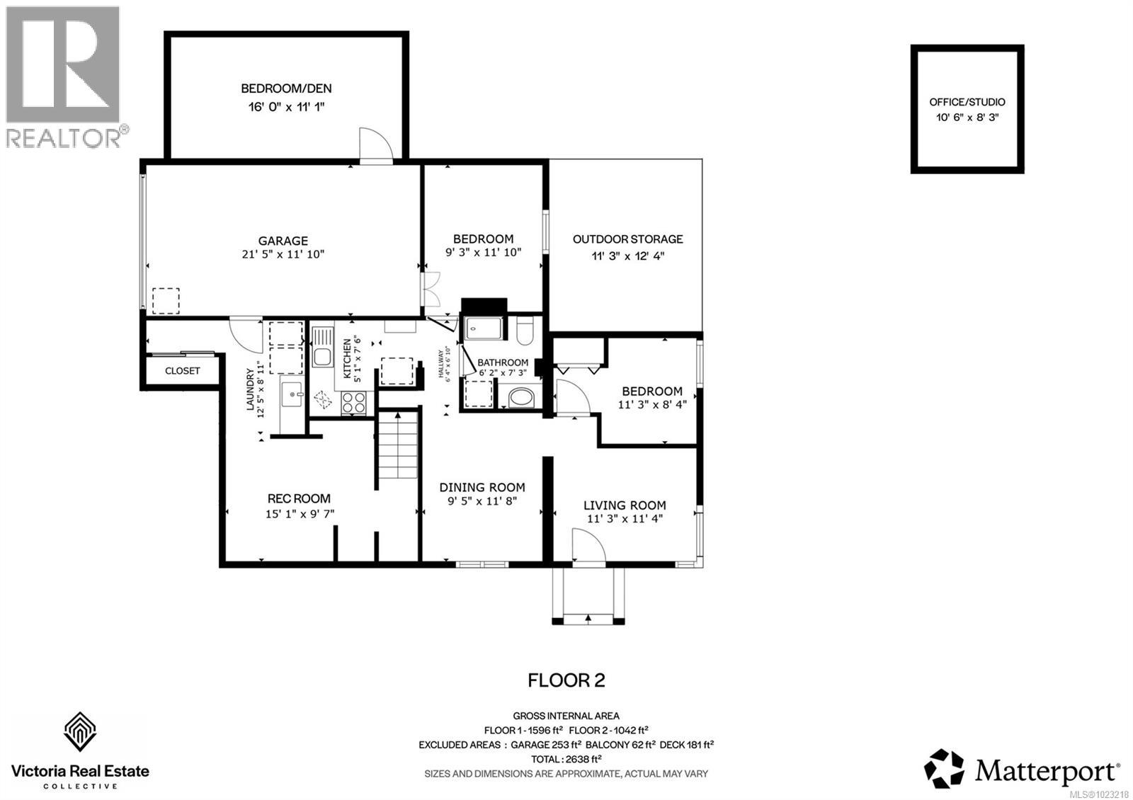
NEW LISTING! OPEN HOUSE SUNDAY 1–3 PM. Renovated designer home in the highly desirable South East Camosun neighbourhood. Offering five bedrooms, three bathrooms, two kitchens, two laundry areas, an office, a den, separate studio and legal 2 bed suite. This exceptional property provides over 2,638 + square feet of living space with excellent revenue and multi-generational living potential. The main floor features three bedrooms and two bathrooms, including a luxurious kitchen with a Butler’s pantry, custom millwork, large island with quartz countertops, stainless steel appliances, tile and wood accents, and ample storage throughout. The open-concept dining area includes a tray ceiling and floating hutch, framed by expansive windows, and flows seamlessly into the family room with access to a generous balcony. The living room is highlighted by a linear fireplace and wide-plank flooring. The executive primary bedroom offers a spa-inspired ensuite, walk-in closet, and heated floors. The lower level includes a recreation room, laundry area, storage, an office or den with fourth bedroom option, and direct access to the garage. A private, legal two-bedroom suite includes its own laundry, offering excellent income potential or flexible living options. Recent updates include insulation, roof, windows, doors, perimeter drainage, furnace, tankless hot water-on-demand system, and 200-amp electrical service. All renovations were fully permitted. The flat yard is fully fenced and gated, with full-height storage beneath the balcony. Outdoor features include established perennials, a raised herb garden, and front landscaping with mature shrubs, grass, and a concrete pathway. Parking is available for five or more vehicles, with additional space for a recreational vehicle or boat. Located on a quiet street close to amenities and transit, this home offers exceptional comfort, flexibility, and long-term value.
Property Specifications
Comprehensive breakdown of features and details.
Interior Details
Building & Exterior
Land & Location
Listing & Financials
Other Specifications
For Sale
$1,479,900
Beds
5
Baths
3
Living Area
2,892 sqft
Lot Size
7,215 sqft
Property Type
House
Year Built
1955