9 Country Squire Lane, Charters Settlement, New Brunswick E3C1W5

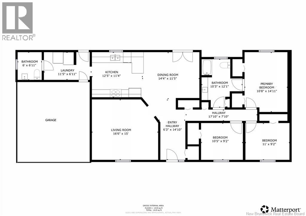
Welcome to 9 Country Squire Lane. This corner lot bungalow in Charters Settlement offers true single level living with a well planned layout. Entering the welcoming foyer, a spacious living room is off to the left, and, straight ahead, the dining area with patio doors leading to the backyard. The modern kitchen offers stainless steel appliances and white cabinetry with generous storage. A mudroom just off the kitchen, which houses the laundry, connects to the garage and a tucked away half bath/utility room. The primary bedroom is located at the opposite end of the home. It includes two separate closets and a cheater door to the main bathroom. Two good sized bedrooms sit at the front of the house, one of which is currently used as a home office. Fully renovated in 2022, the major updates are already done. Comfort and efficiency were clear priorities, with a metal roof with snow rails, added blown-in attic insulation, and two ductless heat pumps. Located approximately 13 minutes from Uptown Fredericton and the Corbett Centre, this home offers a quieter setting without giving up Frederictons amenities. A solid option for first-time buyers, downsizers, or anyone looking for a low maintenance home thats ready to move into.
Property Specifications
Comprehensive breakdown of features and details.
Interior Details
Building & Exterior
Land & Location
Listing & Financials
Other Specifications
For Sale
$419,900
Beds
3
Baths
2
Living Area
1,400 sqft
Lot Size
4,615 square meters
Property Type
Single Family
Year Built
1994