314 250 W 1ST STREET, North Vancouver, British Columbia V7M1B4

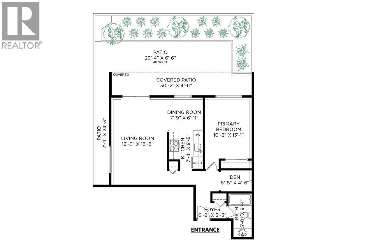
Incredible opportunity to own a beautifully updated 1-bedroom + den, PATIO unit in the heart of Lower Lonsdale. Offering 732 sq. ft. of bright, functional living with new laminate flooring throughout, new fridge + new dishwasher. The open layout flows seamlessly to a spectacular 441 sq. ft. private patio-perfect for entertaining, gardening, or quiet mornings. The versatile den works well as a home office, gaming space, or creative nook. This pet-friendly building allowing 2 cats. Many recent building upgrades too. Situated steps from The Shipyards, Lonsdale Quay, Waterfront Park, shops, restaurants+ the Seabus, this home combines urban convenience with North Shore lifestyle. With its rare outdoor space, updates, plus walkable location, perfect active LoLo living.
Property Specifications
Comprehensive breakdown of features and details.
Interior Details
Building & Exterior
Land & Location
Listing & Financials
Other Specifications
For Sale
$509,000
Beds
1
Baths
1
Living Area
732 sqft
Lot Size
0 sqft
Property Type
Apartment
Year Built
1976