PC-37 49 Pearlgarden Close, Dartmouth, Nova Scotia B2X0C3

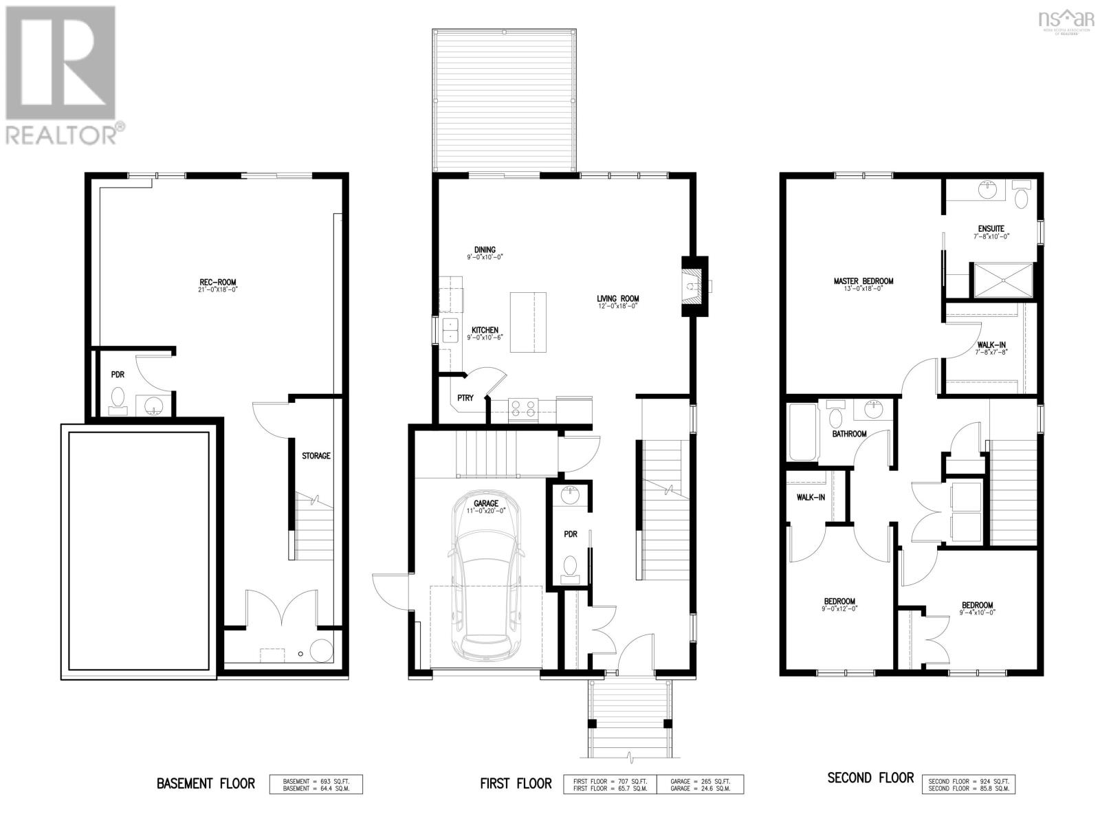
Enjoy Dartmouth living with this stunning home by Rooftight. Meet "Rosemary" a 2-storey home situated on Pearlgarden Close, a quiet cul-de-sac in The Parks of Lake Charles, just off of the Waverley Road. With 3 bedrooms and 3.5 bathrooms, this home is a beacon of comfort and style. The main floor welcomes you with an expansive open concept layout seamlessly connecting the living room, dining room, and kitchen. Enjoy cozy evenings by the natural gas fireplace in the living room or step out onto the back deck, perfect for entertaining. Upstairs, discover the comfort of 3 bedrooms, including a primary suite complete with a spacious walk-in closet and ensuite bath. Located in an exciting neighbourhood, this home is just a few minutes away from Dartmouth landmarks such as the Mic Mac Bar & Grill, Shubie Park, Lake Banook (with its award winning paddling clubs), walking trails, all major amenities, and Dartmouth Crossing less than 10 minutes away! Don't let this opportunity pass byimmerse yourself in the essence of modern living in the heart of Dartmouth. Make this home yours and experience the vibrant community and lifestyle it offers.
Property Specifications
Comprehensive breakdown of features and details.
Interior Details
Building & Exterior
Land & Location
Listing & Financials
Other Specifications
For Sale
$744,900
Beds
3
Baths
4
Living Area
2,324 sqft
Lot Size
0.102 acres
Property Type
House
Year Built
-