19950 McCarthy Road Unit# 27, Lake Country, British Columbia V4V0C2

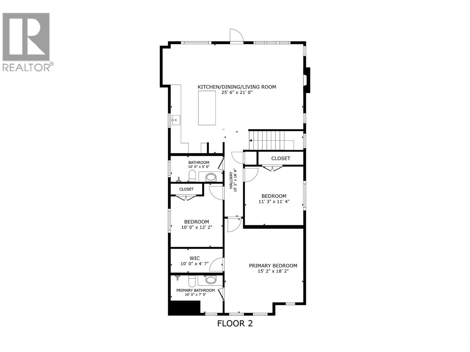
Welcome to #27 at 19950 McCarthy Road, Lake Country, perfectly positioned on a desirable corner lot. This beautifully crafted 5-bedroom, 3-bathroom residence offers a bright, modern design with an impressive sense of space and comfort throughout. The main living area is truly a showstopper, featuring 12' ceilings, a striking built-in gas fireplace with a custom entertainment and storage surround, and expansive floor-to-ceiling windows that flood the home with natural light. The open-concept layout flows effortlessly into the kitchen and dining area, creating an ideal setting for both everyday living and entertaining. From here, step out onto the spacious deck, perfect for indoor-outdoor living and hosting guests. The main floor is thoughtfully designed with three generously sized bedrooms, offering convenient single-level living. The kitchen combines style and functionality with modern finishes and ample workspace, enhancing the home’s refined yet practical layout. A legal 2-bedroom suite adds exceptional versatility—ideal for extended family, guests, or rental income potential. Additional highlights include a heated two-car garage with EV charger, quality craftsmanship throughout, and a layout designed to maximize comfort and efficiency. Ideally located between three lakes and close to schools, transit, shopping, restaurants, the airport, and recreational amenities, this home offers the perfect opportunity to embrace everything the Okanagan lifestyle has to offer.
Property Specifications
Comprehensive breakdown of features and details.
Interior Details
Building & Exterior
Land & Location
Listing & Financials
Other Specifications
For Sale
$999,000
Beds
5
Baths
3
Living Area
2,285 sqft
Lot Size
0.11 acres
Property Type
House
Year Built
2024