111, 8716 108 Street, Grande Prairie, Alberta T8V4C7

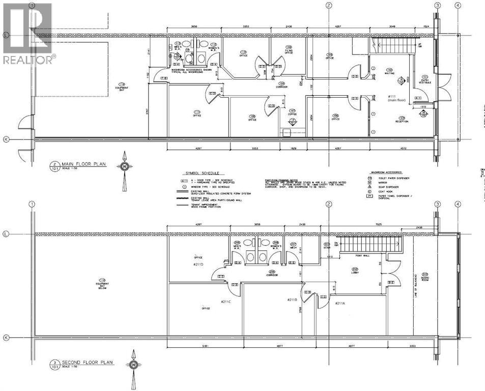
Office Condo Bay with great exposure. Features two floors of premium office space with a small rear shop. Main floor office area is 1380 sqft with reception, 5 offices, two bathrooms, small kitchen and storage room. Front vestibule allows separate access upstairs to 1495 sqft of 4 offices, a large bright board room and bathroom. Also, there is a 690 sqft shop area in the rear with an over head door and small mezzanine. Currently there are tenants in two offices upstairs that have access to the board room for $775 per month gross each with two more vacant ones that could be rented, and the back shop area is rented for $1300 gross per month. All 3 current tenants would like to stay if possible. This is a great opportunity to run your office out of the main floor and have your mortgage mostly covered by the other tenants in the building and also allow you the flexibility to grow in the future. The main floor office space would be available upon possession. Building offers flexible options for keeping as an income property, partial income and owner use, or complete owner occupation. Lots of possibilities.
Property Specifications
Comprehensive breakdown of features and details.
Interior Details
Building & Exterior
Land & Location
Utilities & Services
Listing & Financials
Other Specifications
For Sale
$579,900
Beds
-
Baths
-
Living Area
3,565 sqft
Lot Size
-
Property Type
Offices
Year Built
2006