4535 Bowness Road NW, Calgary, Alberta T3B0A9

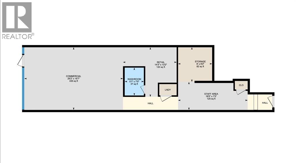
Take advantage of this 999 sq. ft. main-floor retail space in Montgomery Square, a vibrant mixed-use development located at Bowness Road NW and 16 Avenue NW. Designed by Amanda Hamilton, this unit is fully built-out and offers a turnkey retail opportunity. Existing retail fixtures valued at over $100,000 provide a rare chance to step in and begin operations immediately—without the added cost of a full build-out.The space features a welcoming front entrance, excellent storefront visibility with backlit channel signage, one bathroom, a closet, a fully enclosed room, and a kitchen equipped with a microwave, stove, and dishwasher. A washer and dryer are also included. Parking options include ample street parking, as well as one underground stall available under a separate lease for $100 per month.The neighbouring unit is also available for lease (1,200 sq. ft.), and the common wall can be removed to combine both spaces for a total of 2,199 sq. ft.Montgomery Square is part of a growing, pedestrian-friendly community envisioned under the Montgomery Area Redevelopment Plan. The location offers excellent visibility, easy access, and a lively streetscape that attracts both residents and visitors—making it an ideal location to grow your business.
Property Specifications
Comprehensive breakdown of features and details.
Interior Details
Building & Exterior
Land & Location
Listing & Financials
Other Specifications
For Sale
$2,913.75
Beds
-
Baths
-
Living Area
5,995 sqft
Lot Size
-
Property Type
{"AvailabilityDate": null, "DocumentsAvailable": [], "LeaseAmount": null, "LeaseAmountFrequency": "Yearly", "BusinessType": [], "LeasePerUnit": "square feet", "WaterBodyName": null, "PoolFeatures": [], "RoadSurfaceType": [], "CurrentUse": [], "PossibleUse": [], "AnchorsCoTenants": null, "Fencing": [], "OtherEquipment": [], "TotalActualRent": 35, "ExistingLeaseType": ["Other, See Remarks"], "InternetEntireListingDisplayYN": true, "Inclusions": null, "CoListOfficeKey": null, "CoListOfficeKey2": null, "CoListOfficeKey3": null, "CoListAgentKey": null, "CoListAgentKey2": null, "CoListAgentKey3": null, "InternetAddressDisplayYN": true, "Directions": null, "AboveGradeFinishedArea": 5995, "AboveGradeFinishedAreaUnits": "square feet", "AboveGradeFinishedAreaSource": null, "AboveGradeFinishedAreaMinimum": null, "AboveGradeFinishedAreaMaximum": null, "BelowGradeFinishedArea": null, "BelowGradeFinishedAreaUnits": null, "BelowGradeFinishedAreaSource": null, "BelowGradeFinishedAreaMinimum": null, "BelowGradeFinishedAreaMaximum": null, "LivingAreaSource": null, "LivingAreaMinimum": null, "LivingAreaMaximum": null, "PropertyCondition": [], "Roof": [], "ConstructionMaterials": [], "BedroomsAboveGrade": null, "BedroomsBelowGrade": null, "Zoning": null, "ZoningDescription": null, "TaxAnnualAmount": null, "TaxBlock": null, "TaxLot": null, "TaxYear": null, "IrrigationSource": [], "WaterSource": [], "Sewer": [], "Electric": []}
Year Built
2019