1938 Foxwood Trail Unit# 8, Windermere, British Columbia V0B2L2

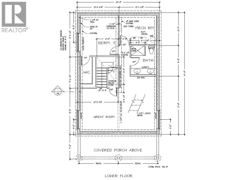
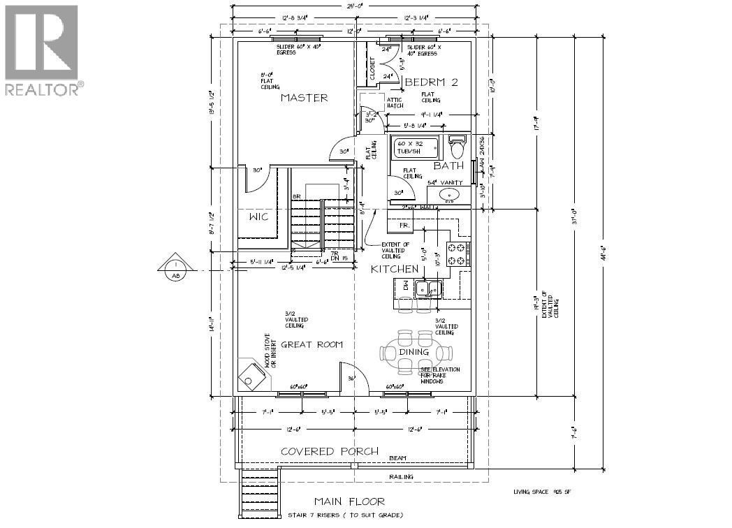
Welcome to your new home in the peaceful and picturesque community of Windermere, BC! Built in 2025, this stunning energy-efficient home combines modern luxury with everyday comfort—and comes complete with a new home warranty for added peace of mind. With 3 spacious bedrooms, 2 beautifully appointed bathrooms, and a great layout, this thoughtfully designed home offers incredible value for families, couples, or those seeking a stylish retreat. Step into the bright, open-concept living area, perfect for entertaining or cozy nights in. The kitchen is a true showstopper, featuring sleek stainless steel appliances, elegant quartz countertops, and smart layout designed to make cooking and hosting a joy. Wake up to breathtaking mountain views, unwind on your private deck, and experience the natural serenity BC is known for—all while enjoying the benefits of a modern, energy-conscious build designed for both comfort and cost savings. Notable upgrades include triple pane windows, extra insulation in the walls/roof and a metal roof. Call your Realtor and book a showing today! there are different sizes/layouts/price points of these so reach out for more information. Price is plus GST.
Property Specifications
Comprehensive breakdown of features and details.
Interior Details
Building & Exterior
Land & Location
Listing & Financials
Other Specifications
For Sale
$499,900
Beds
3
Baths
2
Living Area
1,850 sqft
Lot Size
-
Property Type
House
Year Built
2025