
Manufactured Home For Sale
$379,000
MLS® Number: 10373077
Bedrooms
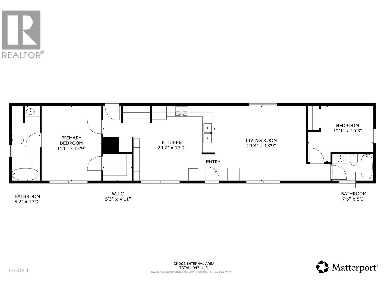
2
Bathrooms
2
Floor Area
1,067
Land Size
1.72
Year Built
1981
Manufactured Home For Sale
$379,000
Bedrooms
2
Bathrooms
2
Floor Area
1,067
Land Size
1.72
Year Built
1981
4717 GOAT RIVER NORTH Road, Arrow Creek, British Columbia
About This Property
Located on 1.72 level acres in the quiet area of East Arrow Creek just outside of Creston, this property offers great land value and potential, with an older manufactured home on site. The existing 2 bedroom, 2 bath home makes for a great livable space that has been modified to be handicap accessible. The property includes a large shop, RV parking, and a mostly level yard with open space for storage or future plans. Mountain views and a peaceful setting are combined with the convenience of being roughly 10 minutes from town. This is a great opportunity for buyers seeking an affordable starter acreage with flexibility to renovate, replace, or build a dream home overlooking the valley and mountains.
Property Details
Interior Details
Appliances
Washer, Refrigerator, Dishwasher, Range, Dryer
Bathrooms Partial
0
Bathrooms Total
2
Bedrooms Total
2
Cooling
Central air conditioning
Flooring
Mixed Flooring
Heating
Forced air
Living Area
1067 sqft
Building & Exterior
Exterior Features
Aluminum
Foundation Details
See Remarks
Parking Features
Attached Garage, RV
Stories
1.0
Year Built
1981
Land & Location
City Region
Arrow Creek to Yahk
Lot Features
Level lot, Private setting, One Balcony
Lot Size Area
1.72 acres
Lot Size Dimensions
1.72
Parcel Number
011-252-421
Postal Code
V0B1G9
View
Mountain view, View (panoramic)
Listing & Financials
Listing Office
Real Broker B.C. Ltd
Originating System Name
Association of Interior REALTORS®
Other Specifications
Common Interest
Freehold
Country
Canada
Parking Total
3
Listed By
Real Broker B.C. Ltd
Mortgage Calculator
Estimated Monthly Payment
$1,862
Principal and interest only. Actual rates may vary.
Mortgage Calculator
Estimated Monthly Payment
$1,862
Principal and interest only. Actual rates may vary.