353 Reighmount Drive, Kamloops, British Columbia V2H1M2

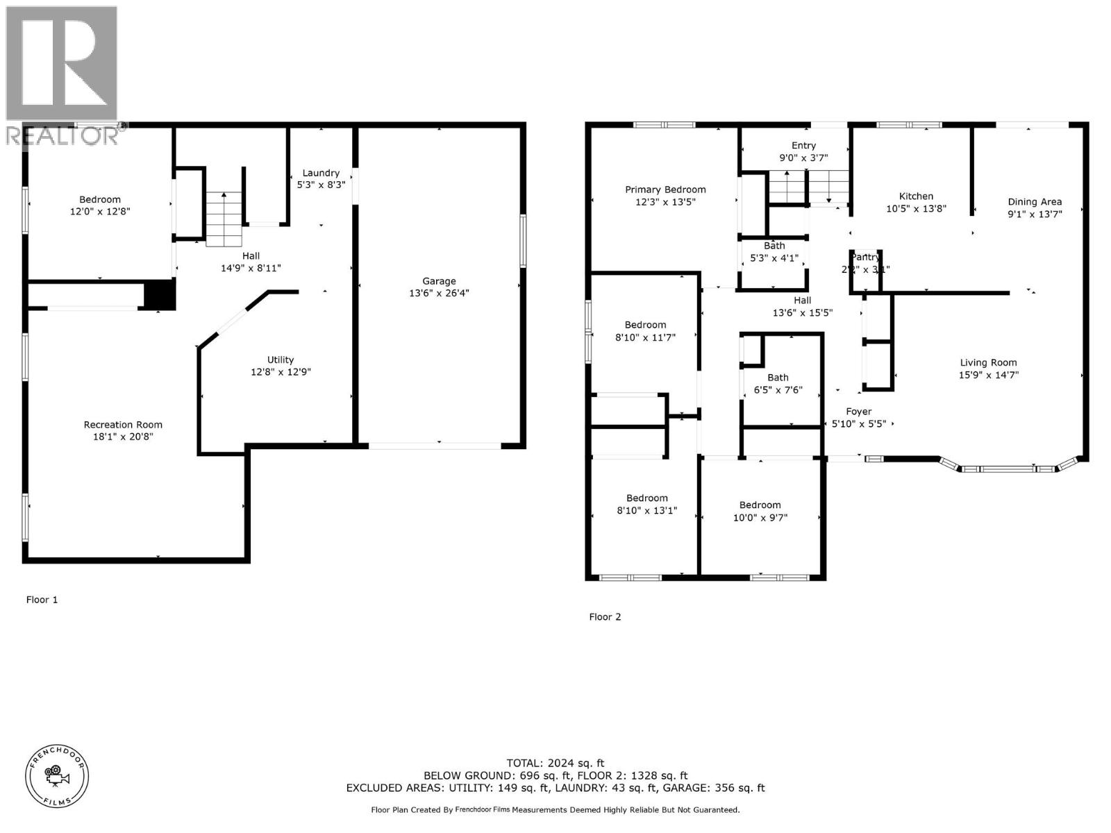
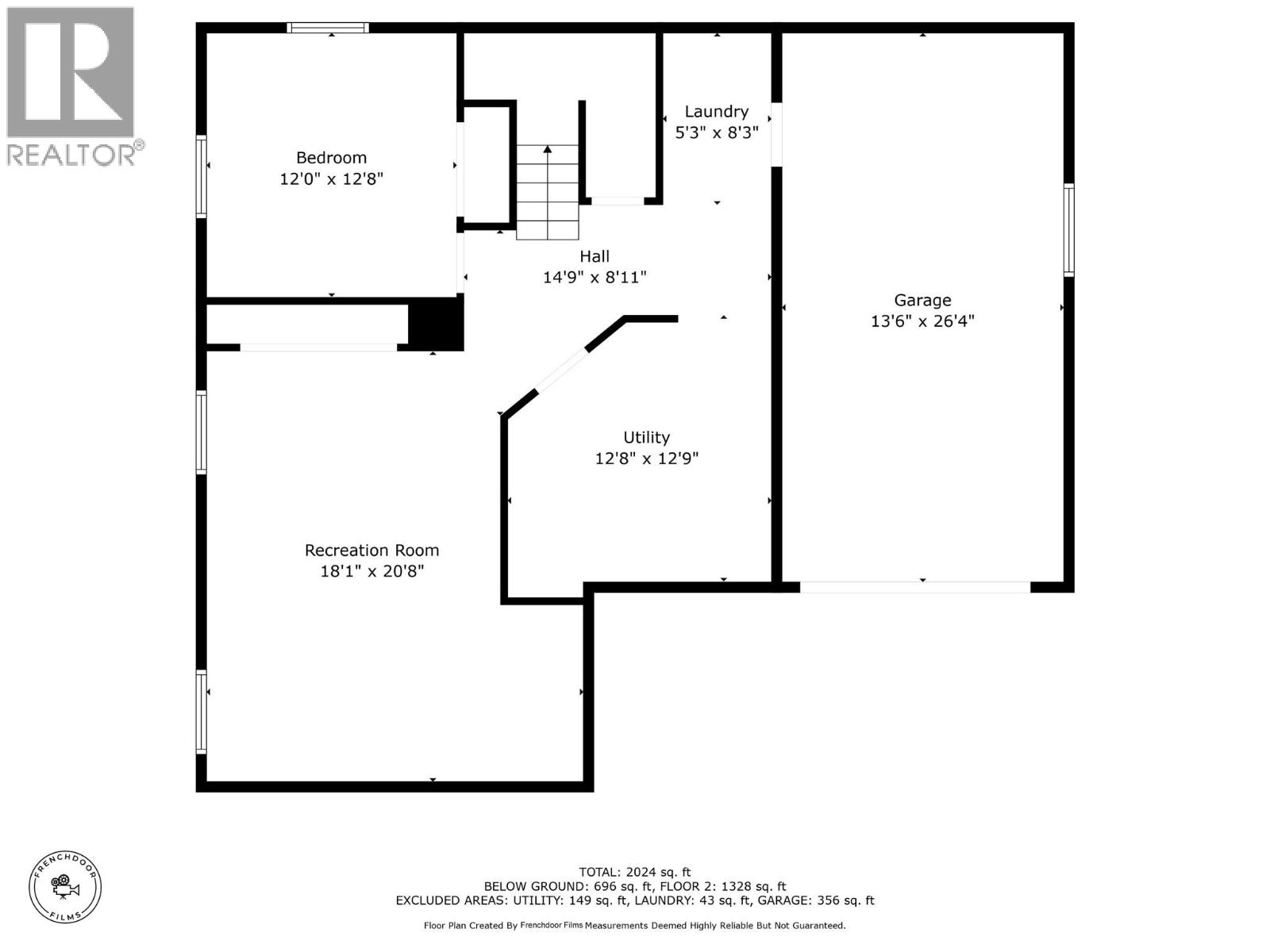
Set on a flat half-acre lot in Rayleigh, this family-sized bungalow offers an exceptional blend of space, practicality, and future potential. With 4 bedrooms on the main, the layout is ideal for growing families or anyone seeking comfortable, easy living with room to spread out. Inside, the home is bright and refreshed with new paint, new kitchen, and updated windows. The major items have already been taken care of, including roof and septic system 12 years old & 6 year old furnace, leaving only minor cosmetic updates for the next owner to add their own style. The basement offers flexible space to bring your ideas, whether for additional living area, recreation, or future customization - it's a clean slate. The expansive lot provides endless opportunity. Under R-8 zoning, there is excellent potential to build a dream shop, additional garage space, or explore options for a carriage house above - well suited for multi-generational living or future income potential. The large, newer back deck overlooks a fully usable yard with plenty of room for kids, pets, gardens, RV and boat parking, dare we say even a swimming pool! Just a short walk to Rayleigh Elementary, this is the kind of quiet, friendly neighborhood many buyers hope to find - safe streets, great neighbors, and room to put down long-term roots. With a price reflective of assessed value and the key updates already complete, this home offers immediate comfort with meaningful upside. All measurements approximate.
Property Specifications
Comprehensive breakdown of features and details.
Interior Details
Building & Exterior
Land & Location
Listing & Financials
Other Specifications
For Sale
$749,900
Beds
5
Baths
2
Living Area
2,366 sqft
Lot Size
0.53 acres
Property Type
House
Year Built
1971