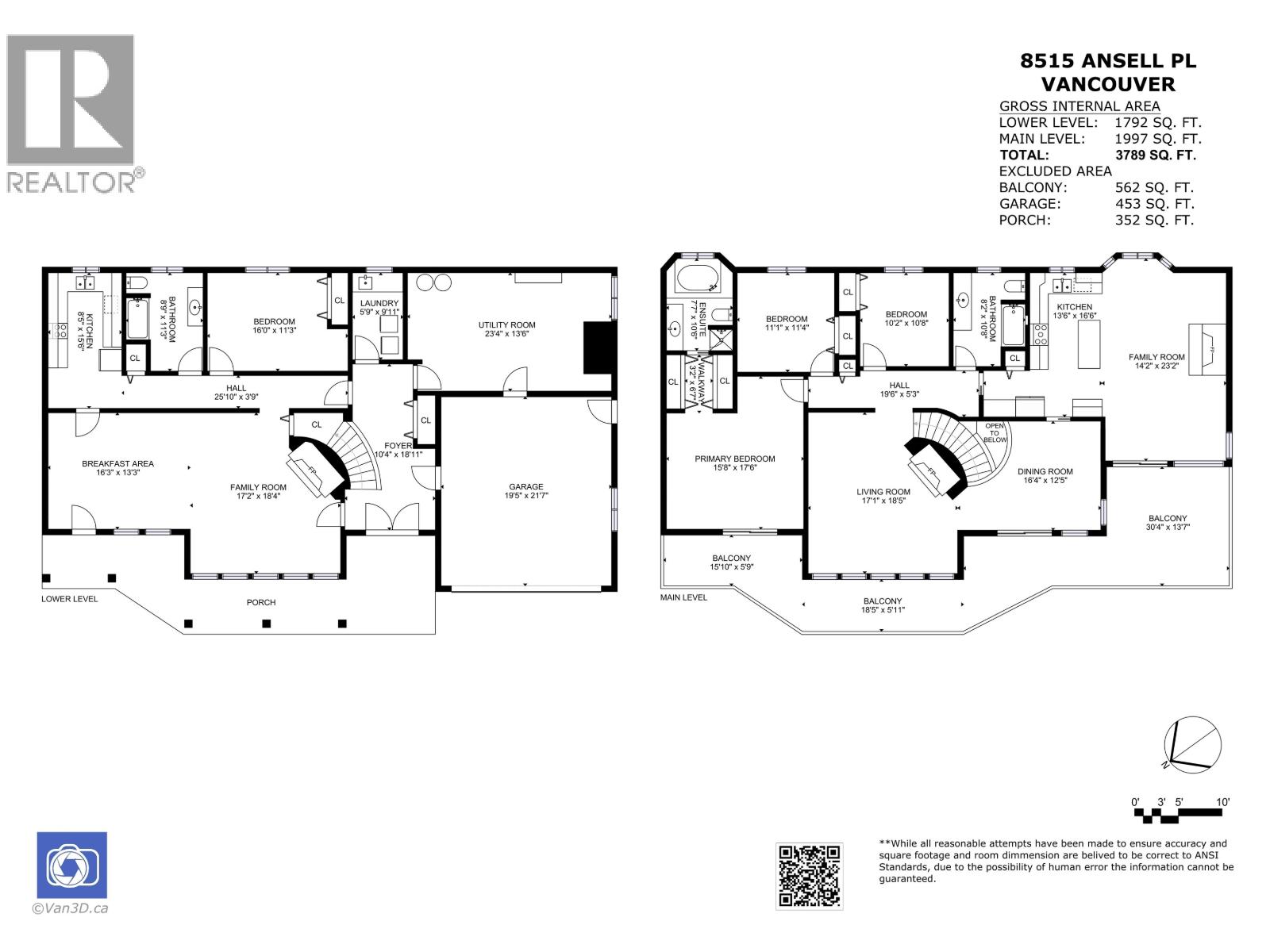
8515 ANSELL PLACE, West Vancouver, British Columbia V7W2W3

Discover your piece of West Vancouver real estate at exclusive Sunset Point! This beautifully remodelled 3,700 SF residence, fully renovated in 2020, sits on a sunny 12,000 SF corner lot in a quiet, family-friendly neighbourhood. Move-in ready with 4 bedrooms and 3 full baths, including a bright 1-bedroom in-law suite with separate entrance-ideal for extended family or as a mortgage helper. The upper floor offers 3 bedrooms, highlighted by a spacious primary suite with a luxurious 5-piece ensuite and ample closets. Enjoy bright living and dining areas, an expansive gourmet kitchen, and seamless access to a large south-facing patio with breathtaking water views, perfect for gatherings and entertaining. Features 3 wood-burning fireplaces and quick possession available.
Property Specifications
Comprehensive breakdown of features and details.
Interior Details
Building & Exterior
Land & Location
Listing & Financials
Other Specifications
For Sale
$1,999,800
Beds
4
Baths
3
Living Area
3,695 sqft
Lot Size
12,000 sqft
Property Type
House
Year Built
1987