403 33478 ROBERTS AVENUE, Abbotsford, British Columbia V2S8E1

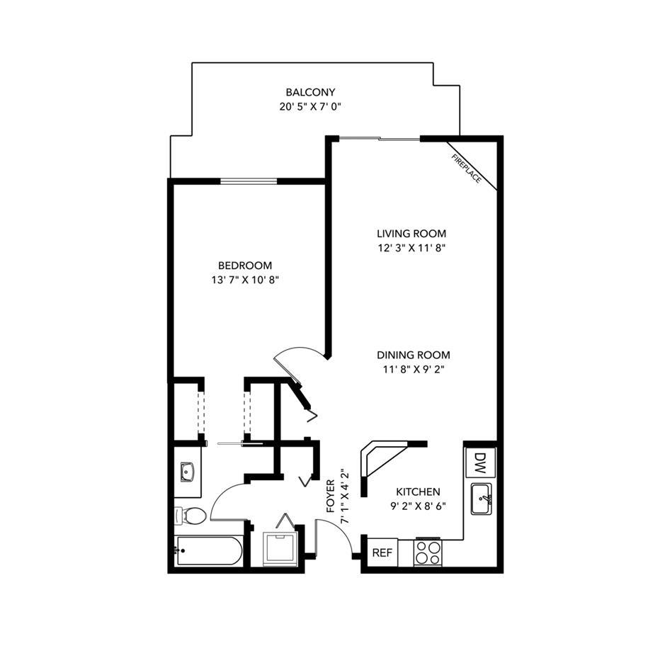
Welcome home to this inviting top-floor corner retreat, flooded with natural light and showcasing northwest-facing views. Soaring 14-ft vaulted ceilings create an open, airy atmosphere, while the cozy gas fireplace (included in strata fees) makes it the perfect place to unwind. Step outside to your generous 126 sq. ft. patio-ideal for enjoying warm summer evenings. The kitchen shines with stainless steel appliances, including a stylish double French-door refrigerator. The spacious bedroom easily accommodates a king-size bed and features walk-through closets leading to a convenient ensuite with cheater access. Enjoy the added convenience of a fitness centre located on the same floor, plus a beautifully landscaped common outdoor area overlooking the ravine. Pet-friendly building.
Property Specifications
Comprehensive breakdown of features and details.
Interior Details
Building & Exterior
Land & Location
Utilities & Services
Listing & Financials
Other Specifications
For Sale
$319,900
Beds
1
Baths
1
Living Area
701 sqft
Lot Size
-
Property Type
Apartment
Year Built
1996