1 1933 TEMPLETON DRIVE, Vancouver, British Columbia V5N4V9

Welcome to Templeton Green, a unique new development in the heart of The Drive just steps from beloved Garden Park. Impressive architecture by Architrix Design Studio, stunning interiors curated by Maria De Cotiis & built by Fina Homes to exacting Net Zero standards with solar panels, high performance windows, advanced insulation, zero emission heating & more. This ultra efficient 2 bedroom + 1 bathroom garden home offers high ceilings, large windows and premium finishes throughout. With no strata fees and next to no operating costs thanks to superior energy efficiency from the Net Zero construction these smart homes just make sense. Perfect for 1st time buyers who are exempt from GST!
Property Specifications
Comprehensive breakdown of features and details.
Interior Details
Building & Exterior
Land & Location
Listing & Financials
Other Specifications
For Sale
$799,000
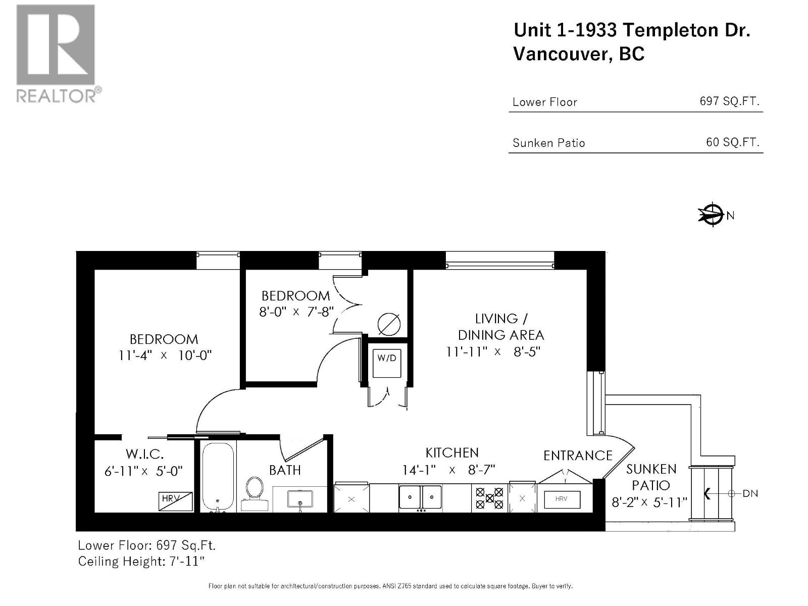
Beds
2
Baths
1
Living Area
697 sqft
Lot Size
2,500 sqft
Property Type
Duplex
Year Built
2025